16 октября 2018, 09:07 -
Дороги
Но лишь на один день в неделю — по четвергам.
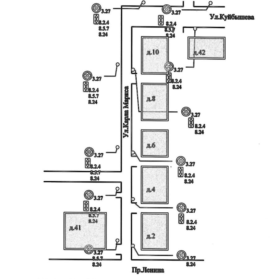
О решении, вынесенном комиссией по безопасности дорожного движения и опубликованном в преддверии зимних холодов, сообщается в постановлении администрации Сарова от 12 октября. Согласно приложенной схеме, всю северную сторону улицы К. Маркса (от проспекта Ленина до поворота к школе) сделают безостановочной. Здесь будут работать эвакуаторы.
Шесть знаков сопроводят табличками «Время действия: четверг с 9 до 17». На противоположной стороне парковаться также запрещено, но без ограничений по времени.
1 комментарий