Новости Обсуждения новостей » | Последние новости
Все новости за месяц | |||||||||||||||||||||||||||||||||||||||||||||||||||||||||||||||||||||||||||||||
Новые бастилии | ||||||||||||||||||||||||||||||||||||||||||||||||||||||||||||||||||||||||||||||||
| "Должен и будет строиться" Проект восточных территорий отправили на доработку 17 мая 2018 - комментарии: 8 |
| Строить можно? Слушания по МКР-1А1Б обернулись жаркими спорами 28 апреля 2018 - комментарии: 52 |
| Город двенадцати башен В МРК-АБ будет ещё одна поликлиника и единый бульвар 20 апреля 2018 - комментарии: 7 |
Все новости по теме новый район за Силкина
Комментарии
![]() | Серафим Саровский # 12 апр’18, 10:27 Мне нравится! Ответить Правка |
![]() | Лёха # 12 апр’18, 12:26 И мне... Ответить Правка |
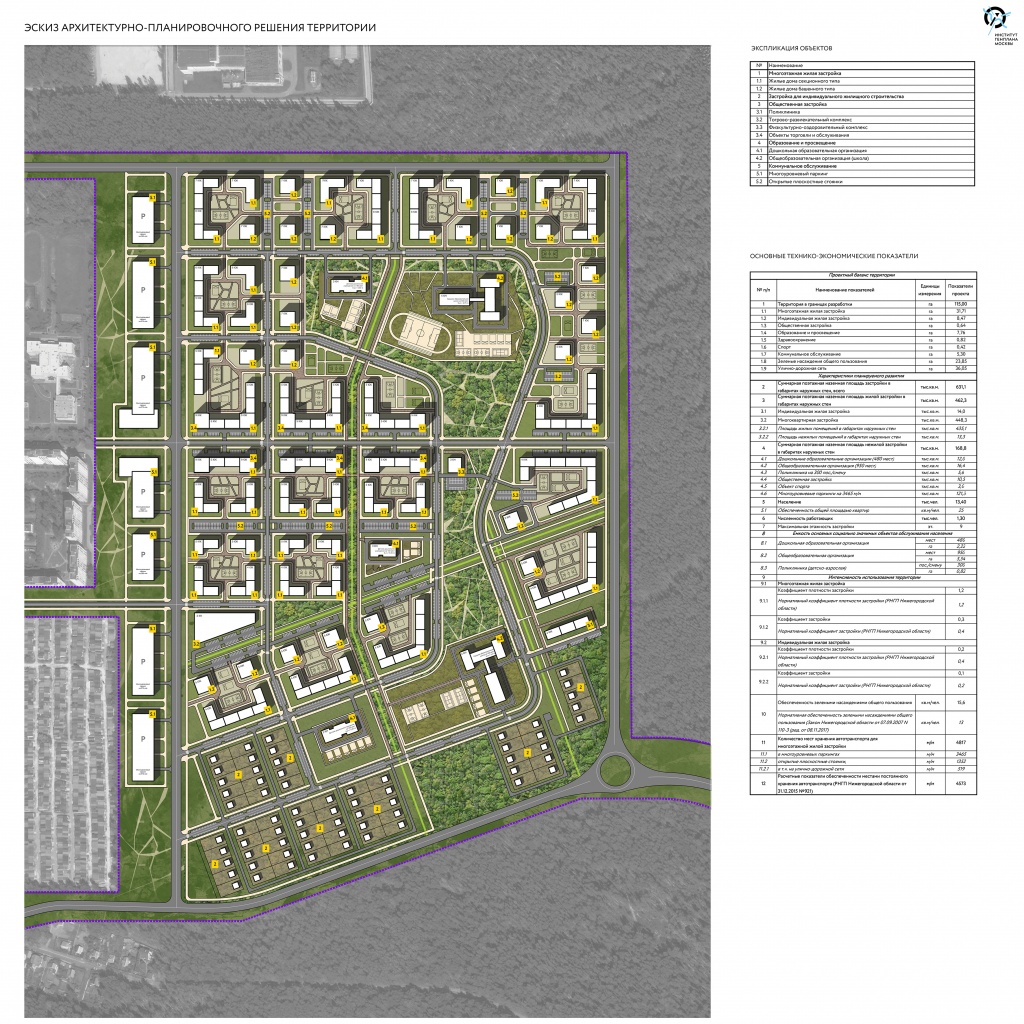
![]() | Владимир Викторов # 12 апр’18, 13:17 Для сравнения: кварталы Герцена-Юности в том же масштабе: Ответить Правка |
![]() | Matroskin # 12 апр’18, 13:28 Сверху — так прямо Барселона какая-то!.. Ответить Правка |
![]() | Макс222 # 12 апр’18, 14:45 Этот район строить нельзя -это заповедная зона Ответить Правка |
Да, при карандашкине об этом говорили,видимо при голубеве пропихнули. Ответить Правка |
![]() | qw # 12 апр’18, 15:03 Интересно. Все и квартиры в пойме и в районе 3кп нашли своих хозяев? Ответить Правка |
Да нет конечно. А сейчас когда валюта взлетела, цены взлетят, зарплаты упадут,предприятия будут закрываться, кто будет покупать-то. ипотека тоже повысится, даже если останется в тех же размерах, она будет неподъемная для молодежи. Застройщика не особо волнует купили не купили, он свой откат от администрации получил и остался не в накладе, дальше его уже не очень беспокоит . Ответить Правка |
![]() | Димыч # 12 апр’18, 15:16 Типовой набор штампов. Ни доминатнты ни "центра притяжения" района. "зелёные" зоны отделены от жилых дорогами. Бульвара нет. Хрень и ничего интересного. Как в фильме "Ирония судьбы". Лишь бы нашлёпать. Пусть продложают в том же духе.. Хорошее сравнение с ул.Юности. Там реально голый район. Тридцать лет не могут благоустроить бульвар и посадить растительность. Ответить Правка |
![]() | Matroskin # 12 апр’18, 15:36 Пока не упрутся в колючку — будут строить. Потом либо колючку отменят, либо пролоббируют её перенос. Главное — стянуть людей в кучу, посадить на одну трубу, одну дорогу, один провод и т.д. Легче управлять, легче тянуть деньги, легче делать людей зависимыми от НИХ ! Вперед, к теликам, бояться царя и атомной войны! Ура! Ответить Правка |
О чём бы речь не заходила, вывод всегда один. Что-то похожее уже в мировой истории было... "Карфаген должен быть разрушен"... Ответить Правка |
![]() | Spun # 12 апр’18, 18:48 Сколько можно строить это типовое г*вно с пустырями между домов и "проспектами" в спальных районах. Неужели так трудно посмотреть, как сейчас строят в мире и сделать выводы. Через 20 лет этот район станет Бессарабенко 2.0. Ответить Правка |
Ответить Правка |
![]() | Вася_я # 12 апр’18, 18:59 Уничтожают единственное место, где можно насладится природой. Вся надежда на , что не допустят варварства. Ответить Правка |
Как деньжат то хочется отмыть на строительстве, попилить гос. денежки, не нахапались уроды, будь они прокляты. Тупое ворье. Ответить Правка |
Надо не надеяться, а что-то делать. Подпишите обращение к губернатору, которое распространяют активисты домов 44 и 46 по ул. Силкина. Ответить Правка |
А где найти этих активистов? Могли бы стоять и собирать около Дома Торговли и Атома хотя бы через день в течение двух недель. Ответить Правка |
Это в силах сделать Алексей подурец, Владимир Агапов и ДР члены Саранской пустыни. Ответить Правка |
Это оговорка по Т9 а в Саранске щас в два раза дешевше и красивше, говорят. Ответить Правка |
![]() | Ира # 12 апр’18, 20:22 Можно смириться если построят в два раза меньше домов. Ответить Правка |
На это всегда делается расчет по схеме "хочешь попросить пять — попроси десять!". Всегда закладывают "недовольство жителей".. "Ну так и быть, мы вас услышали, построим не 25-ти, а 18-ти этажный дом".. И всем становится легче!... Ответить Правка |
В общем и целом Вы правы. На абсолютное большинство это действует безотказно. Но Подурец и Агапов не из этой категории. Но думаю и они вынуждены будут "согласиться" с властно-финансовыми интересами местных правителей. Ответить Правка |
Подурец и Агапов занимались восстановлением Саровской пустыни и карандашкине финансировал их проекты. Также и Голубев, думаю поступает. А вот будут ли краеведы последовательны или уступят? Баш на баш? Ответить Правка |
Карандашкин как раз выгнал их из муниципального помещения, где был их музей, еще и травили их по всем своим карманным сми. Ответить Правка |
А мочалов туристов выгнал, чтобы офис себе на юности 15 сделать. Не забудем! Ответить Правка |
Видимо об этом: http://www.gazeta-sarov.ru/?cat=5&id=1944 Может знающие люди поведают о том как помещение для туристов при Валере Димитрове вдруг стало принадлежать частной лавочке, выпускающей хвалебные статьи про Валерия Димитрова. Ответить Правка |
Тактика у властей прямо противоположная: пообещают построить 4-этажные дома, а построят 12-этажные. Внесение поправок в проект не запрещено. Ответить Правка |
![]() | саровчанин47 # 13 апр’18, 09:10 Вот ещё мнение: https://varlamov.ru/1873609.html Ответить Правка |
Вот ну ни разу не хочется превращать наш город в некое подобие такого: https://varlamov.ru/2611876.html Ответить Правка |
![]() | Пенс # 13 апр’18, 09:39 Кто нибудь анализировал хватит ли разрастающемуся городу основного природного ресурса — питьевой воды? От рек уже ничего не осталось, ресурс подземных озер тоже близок к исчерпанию. Эксперты...АУУУ, где вы! Возросшее население нужно трудоустраивать, производства тоже требуют воды. В перспективе мертвый город задыхающийся от жажды... Ответить Правка |
Ответить Правка |
![]() | jОчевидность # 13 апр’18, 15:57 Рребята. там тема другая. На вот эти веселые картинки из бюджета киданули 12 млн. рублей. в этом и весь смысл. потом еще на дороги денег будут клянчить дабы освоить. Что интересно, у муниципалов вообще нет полномочий на такой проект планировки и межевания, поскольку там вообще нет муниципальных объектов. по закону, что как и где строить будет определять застройщик в соответствии своим желаниям и градостроительным регламентом. А кто там вообще чето хочет строить вопрос. никаких инвесторов там не видно. жилья в городе до фига. заработки у людей идут на ноль. В общем очередной распил бюджета без всякой пользы для города. Ответить Правка |
Насколько достоверна информация? Хорошо если бы это была очередная маниловщина Ответить Правка |
![]() | Голубев - Кумач # 13 апр’18, 17:34 Это чьюдвищно! Как страшно жить.. Ответить Правка |
![]() | Алексей Демидов # 22 апр’18, 09:11 Дорогие ГРАЖДАНЕ САРОВА! Давайте придём 27-го апреля в 5:00 в Актовый зал Администрации Сарова , и скажем РЕШИТЕЛЬНОЕ НЕТ уничтожению Серафимовского леса !!! Ответить Правка |
Если к 17:00 в пятницу 27-го апреля в актовом зале Администрации Сарова соберутся 300 человек , и все они скажут РЕШИТЕЛЬНОЕ НЕТ преступным планам Администрации Сарова "НАТИСКА НА ВОСТОК" — ДЕЛО БУДЕТ СДЕЛАНО! Все эти голубевы и тихоновы тихо сдуются, а строительная мафия Сарова будет искать новые возможности для отмывания воровских денег в Сарове... Ответить Правка |
Написать
Если вы хотите ответить кому-то, нажмите ссылку "Ответить" под его комментарием. Другие советы






